三代同堂的160㎡旧房改造新家,每个空间都暗藏着“小心机”!
在有温度的家
过理想的每一天
DESIGN
设计解析
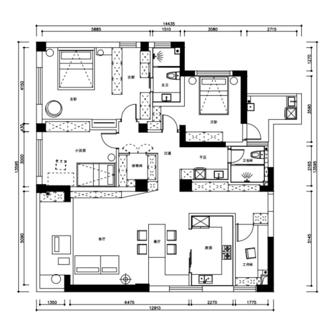
160㎡/现代简约/三居室
住在通透感十足的家里是一种什么体验?160㎡三居室+书房+衣帽间,接送孩子13825404095从孩童到青年再到老年,三代同堂的家也可以住的随意自在~
(△方案图)
01.
玄关
玄关,利用原有的地面高度差,做了下沉式设计,并暗藏上了感应式的暖色灯光。既强化了落尘区的整洁度,也让入户充满生活仪式感。
一面到顶的鞋柜,白色的鞋柜与墙面一致,视觉统一。预留了挂衣区与换鞋卡座,卡座下面抽屉可以储物,底部悬空放常用鞋,实用美观
02.
客厅
客厅是优雅宁静的奶油色为基调,温馨的原木色做点缀,治愈又美好。空间做了一体化设计,除了客厅与餐厅的互通,阳台也取消了移门隔断,最大程度提升了空间的通透性。
空间搭配上小体量的家具,更有一种通透感。为了进一步放大空间感,一些硬装上的小细节处理,如墙顶同色、顶面做无主灯设计,并通过筒灯来照明,还原了空间层高。
电视墙一组白色悬浮电视柜,在视觉上做到了轻盈,也承担了客厅的杂物收纳功能,延续整体线条的干净、整洁。转角处做了斜切处理,与过道空间自然过渡。
暖咖色的皮面沙发、无茶几、无地毯,既在硬朗与轻柔间做到了平衡,又给予了居住者极佳的居住形态,从而让日常生活不受条条框框限制,享受自由、随性的每一天。
沙发背景墙,克莱因蓝挂画与壁挂报刊架做装饰,与整体色彩形成鲜明对比,增加空间稳重感。意式落地灯,平添了几分温馨感!
03.
阳台
阳台加高做了地台,极简的原木色搭配上百合竹,颇为文艺清新,舒适的单椅质感满满,整个家中布满了慵懒随性的氛围。
04.
餐厅
餐厅采用深邃黑色渲染主题,以实木餐桌餐椅呈现更静谧的环境氛围。L型落地柜实现餐边柜功能,创意飞碟吊灯,赋予用餐时光更多仪式感。
品尝美食、品味人生,在亲人面前倾心畅谈,分享彼此的人生感悟,这便是生活的意趣。
05.
厨房
厨房采用三联动移门,隔绝油烟的同时方便使用。现代感十足的设计将厨电嵌入橱柜,配色选择了干净百搭的白色系,与地面的深灰色放在一起丝毫不显违和。
U型布局在提升下厨效率的同时,也为居住者带来更多的人文关怀,合理的动线、宽裕的尺度、良好的采光,让下厨变得更加有仪式感和幸福感。
06.
卫生间
洗手台外移,卫生间内部只有马桶与淋浴区,这样上厕所与洗澡的空间宽阔舒适,大大提高了生活品质。
过道空间比较长,除了洗手台,还增加了洗衣机+烘干机+收纳柜,这样设计能够充分利用好这块鸡肋空间,为家中增加一个实用的功能区。
07.
主卧
主卧,色彩搭配较为温柔治愈。以蓝色当主题色,增加睡眠质量。家具与地面则采用原木色和浅色,赋予更质朴自然的气息。辅以挂画点缀,赋予空间宁静温馨的气质。
床尾内嵌次净衣区,方便睡前的更衣,也方便将外套等次净衣隔离,提高空间舒适性。
08.
衣帽间
主卧隔出一个独立的衣帽间,双排的整墙收纳柜,既满足了居者的收纳需求,又提升了居住的品质感。
09.
长辈房
老人房安居一隅,独享清静。造型简约、线条流畅的衣柜与墙面融为一体。筒灯、床头阅读灯与柔和灯带共同组成完善的灯光系统,无论是夜读、起夜还是晨起,随手可打开的灯尽显贴心细节。
卷帘引入阳光与微风,让卧室充满闲适与美好。
10.
儿童房
儿童房,以灰蓝色粉刷半墙,像一望无际的大海包容着一切,搭配童趣的装饰,布置游戏区、收纳区域,培养孩子的动手能力。
11.
书房
简洁功能与光线变化和谐共存,温润的木质与光在这个空间自由流动。沿墙面延伸的悬空书桌可满足两人日常使用,运用灰色地毯进行铺垫,结合原木款优雅书桌散发天然气息。
说在后面
━
装修和生活一样
有望穿秋水的等待
也会有意想不到的惊喜
挑选适合自己的
才能找回属于最初的梦想



























